Kontakt

Düsseldorf

Hetzel, Tor-Westen + Partner
Ingenieurgesellschaft mbH & Co. KG

Tersteegenstraße 28
40474 Düsseldorf

Tel: +49 (0) 211 / 47 888-0
Fax: +49 (0) 211 / 47 888-47

E-Mail: htw-d@htw-ingenieure.de
Internet www.htw-ingenieure.de

 

Leipzig

Hetzel, Tor-Westen + Partner
Ingenieurgesellschaft mbH

Petersstraße 32-34
04109 Leipzig

Tel: +49 (0) 341/496280-40
Fax: +49 (0) 341/496280-69

E-Mail: htw-l@htw-ingenieure.de
Internet www.htw-ingenieure.de

 

Berlin

Hetzel, Tor-Westen + Partner
Ingenieurgesellschaft mbH

Friedrichstraße 100
10117 Berlin

Tel: +49 (0) 30/253714-0
Fax: +49 (0) 30/253714-4

E-Mail: htw-b@htw-ingenieure.de
Internet www.htw-ingenieure.de

 

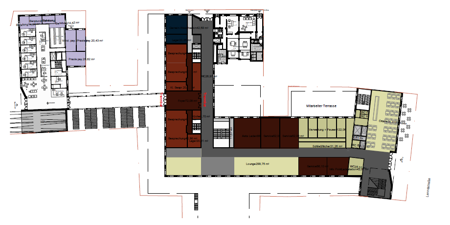
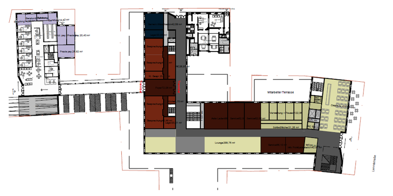
Carré Nassestraße in der Bonner Südstadt

Bonner Südstadt

// Aktuelles

Das Carré Nassestraße in der Bonner Südstadt soll nach der Fertigstellung 2023 neben der neuen Zentralmensa der Rheinischen Friedrich-Wilhelms-Universität mit täglich 4.000 Essen die Büroflächen des Studierendenwerks Bonn und des ASTAs der Universität, ein Konferenzzentrum, eine Tiefgarage für die Mitarbeiter sowie 155 Apartments für studentisches Wohnen umfassen.

Bei eine NGF von ca. 20.000 m² werden die Baukosten mit deutlich über 40.000.000,00 € veranschlagt.

HTW freut sich darauf, als Teil des Wettbewerbs- und des Generalplanerteams an der Planungsaufgabe mitwirken zu können.

Weitere Themen in diesem Bereich: